ZSZ制水閘門
ZSZ制水閘門是給排水工程、水利、水電工程中常用的攔水、止水設備,ZSZ制水閘門四面止水,適用于渠道或孔壁的安裝。
一、ZSZ制水閘門簡介
ZSZ制水閘門是給排水工程、水利、水電工程中常用的攔水、止水設備,ZSZ制水閘門四面止水,適用于渠道或孔壁的安裝。
二、產品圖片

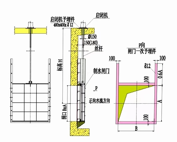
三、產品結構安裝圖

四、ZSZ鋼制閘門啟閉機廠家選用說明
1.CBZ型配套專用啟閉裝置,僅需注明手動或電動即可,無需另外注明啟閉機型號。
2.ZSZ型插板閘門按鑄鐵閘門啟閉力計算方法計算。
3.DLZ型采用電動單梁吊車(電動葫蘆、手動葫蘆)配抓落機構啟閉。
4.PGZ型可按啟閉力配用我公司生產的Q系列啟閉機,也可用卷揚式啟閉機、電動葫蘆配自動抓落機構。
本文來自于:www.mobstars.cn